
Born from the First Light of Desert Dreams, “The Stonehill,” a California Dream Bungalows creation.
This stunning new construction showcases 1,326 square feet of contemporary design plus a 375-square-foot detached guest house, complete with paid solar. Floor-to-ceiling windows frame breathtaking vistas while flooding interiors with natural light. The main residence features polished concrete floors, soaring ceilings, and a zero-clearance linear fireplace with custom shelving. The gourmet kitchen boasts stainless steel appliances and sleek finishes. Two primary suites offer spa-inspired bathrooms with glass-enclosed showers and generous storage. Energy-efficient mini-split systems throughout. Expansive covered patios invite seamless indoor-outdoor living beneath spectacular mountain views.
Key Features
2
Bedrooms
2.5
bathroom
Open
Design
1,701
Sq. Ft.
the Stonehill
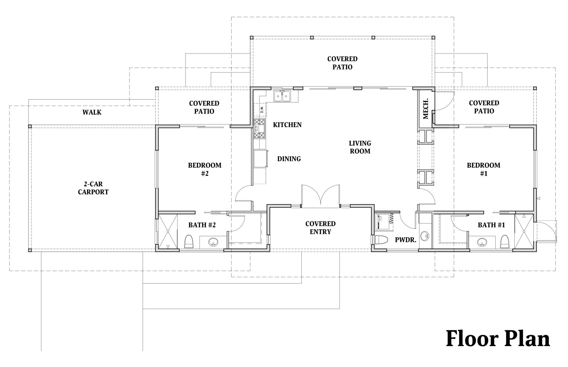
The Stonehill from California Dream Bungalows is a 7 room home with 2 bedrooms, 2 bath, open kitchen and living room.

Bedroom #1
Large bedroom with a private bathroom, providing comfort and seclusion. Abundant natural sunlight fosters a calming, welcoming ambiance, ideal for relaxation and restoration. The room includes a two-way fireplace. The connected bathroom offers extra ease and elegance, finishing the feeling of a personal, peaceful escape.
Living Room
The living room is a comfortable space designed for relaxation and entertainment. It features a cozy layout with ample seating, perfect for spending quality time with family and friends. Natural light floods the area, enhancing the inviting atmosphere. A focal point double-sided fireplace.
Kitchen
The galley style kitchen features a streamlined design, perfect for efficient cooking. Its compact layout optimizes space, making it ideal for smaller areas. The efficient use of counter space and storage solutions ensures a functional and enjoyable cooking experience.
Dining
The dining area just off the open kitchen is a bright and inviting space, perfect for meals and gatherings. The open layout creates a seamless flow between the kitchen and dining area, making it ideal for both casual meals and more formal dinners.
Bathroom #1
Bedroom #2 is a comfortable and inviting space, slightly smaller than Bedroom #1. It maintains a cozy atmosphere, perfect for rest and relaxation, and is designed for functionality and comfort, making it an ideal retreat with its own attached bath.
Bedroom #2
bedroom #2
Bathroom 2
Bathroom 2 has an attached walk-in closet, offering both convenience and enhanced storage solutions within the space.
Powder Room
The powder room and laundry area are combined, offering a multi-functional space that is both convenient and space-efficient. This design decision streamlines the home’s utility areas, making them accessible and practical for everyday use.
Front Porch
The modern version of the classic front porch features clean lines, updated materials, and a welcoming design that seamlessly blends comfort and style. It’s an inviting space perfect for enjoying the outdoors.
Carport
A two-car garage provides ample parking and storage space, enhancing the functionality and convenience of the property. It can protect vehicles from the elements and also offer additional storage for outdoor equipment, tools, and other household items.
Covered Patio




