
Step into the contemporary elegance of “The Nelson,” a California Dream Bungalows creation.
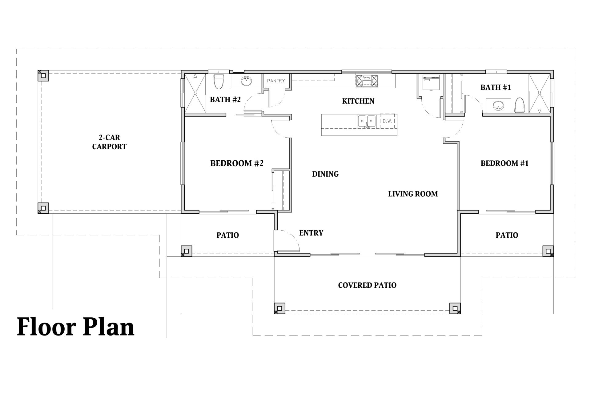
This modern retreat features 2 bedrooms and 2 bathrooms across 1,196 square feet of thoughtfully designed living space on 1.25 acres. Solar panels provide sustainable energy efficiency while sophisticated smart technology enhances everyday convenience. The open floor plan showcases a gourmet kitchen with island and stone counters, seamlessly blending form and function. Both bedrooms are situated on the main level for single-story living. With ductless heating and cooling, a gas fireplace, and carport parking, this turnkey residence offers the perfect blend of contemporary design and comfortable living.
Key Features
2
Bedrooms
2
bathroom
Gourmet
Kitchen
1,196
Sq. Ft.
the Nelson
The Nelson from California Dream Bungalows is a 6 room home with 2 bedrooms, 2 bath, open kitchen and living room.

Bedroom #1
Spacious bedroom with an attached bath, offering both comfort and privacy. The room features ample natural light, creating a relaxing and inviting atmosphere perfect for rest and rejuvenation. The ensuite bathroom provides added convenience and luxury, completing the experience of a private, tranquil retreat.
Living Room
The living room is a comfortable space designed for relaxation and entertainment. It features a cozy layout with ample seating, perfect for spending quality time with family and friends. Natural light floods the area, enhancing the inviting atmosphere. A focal point are the large sliding glass doors with an amazing view.
Kitchen
The galley style kitchen features a streamlined design, perfect for efficient cooking. Its compact layout optimizes space, making it ideal for smaller areas. The efficient use of counter space and storage solutions ensures a functional and enjoyable cooking experience.
Dining
The dining area just off the open kitchen is a bright and inviting space, perfect for meals and gatherings. The open layout creates a seamless flow between the kitchen and dining area, making it ideal for both casual meals and more formal dinners.
Bathroom #1
Bedroom #2 is a comfortable and inviting space, slightly smaller than Bedroom #1. It maintains a cozy atmosphere, perfect for rest and relaxation, and is designed for functionality and comfort, making it an ideal retreat with its own attached bath.
Bedroom #2
bedroom #2
Bathroom #2
Each bathroom has a full size closet.
Front Porch
The modern version of the classic front porch features clean lines, updated materials, and a welcoming design that seamlessly blends comfort and style. It’s an inviting space perfect for enjoying the outdoors.
Carport
A two-car garage provides ample parking and storage space, enhancing the functionality and convenience of the property. It can protect vehicles from the elements and also offer additional storage for outdoor equipment, tools, and other household items.





